Wir Schaffen Heimat
×

Immobilientyp auswählen

Postcodes

Umkreissuche

Kaufpreis

Zimmeranzahl

Wohnfläche

Energieeffizienzklasse

Grundstücksgröße

Baujahr

Energieträger

Luxuriöses Haus mit Nähe zum Golfplatz

Rathenow

Anfrage
Geschätzte Monatsrate   1.722 €
Mehr Informationen

Kaufpreis 550.000 €

+ Kaufnebenkosten (8.5%) 46.750 €

- Eigenkapital (25%) 137.500 €

= Nettodarlehen 459.250 €

Monatsrate ca. 1.722 €

(Basierend auf 10 Jahre Sollzinsbindung / 1% anfängliche Tilgung / Sollzins 3.5%)

Ihr persönliches Angebot anfordern

550.000 €

Kaufpreis

4

Zimmer

123 m²

Wohnfläche

Details

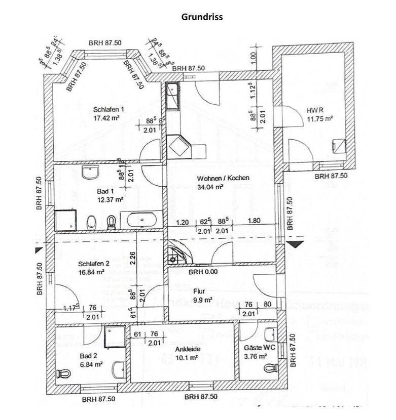
Objektart Einfamilienhaus (freistehend)
Wohnfläche 123 m²
Grundstück 700 m²
Baujahr 2011
Nutzfläche 40 m²
Objektzustand Gepflegt
Wesentlicher Energieträger Strom
Zimmer 4
Badezimmer 2
Schlafzimmer 2
Garage/Stellplatz Carport

Sonstige Daten

Bezugsfrei ab nach Absprache
Provision für Käufer Nein

Energiedaten

Energieausweis liegt vor
Energieausweistyp Verbrauchsausweis
Endenergieverbrauch 26,3 kWh/(m²*a)
Energieeffizienzklasse A+
Baujahr Lt. Energieausweis 2011 Das Feld "Baujahr laut Energieausweis" entspricht den
26,3 kWh/(m²*a)
Energieeffizienzklasse A+
A+
A
B
C
D
E
F
G
H
0
30
50
75
100
130
160
200
250
>250

Objektbeschreibung

  • Willkommen in Ihrem neuen Traumhaus in Rathenow! Dieser luxuriöse Bungalow aus dem Jahr 2011 besticht nicht nur durch seine hochwertige Ausstattung, sondern auch durch seine einzigartige Lage: direkt am Wald, in exklusiver Nähe zum Golfplatz und nur einen kurzen Spaziergang vom malerischen See entfernt. Hier erleben Sie das perfekte Zusammenspiel von Natur und Komfort. Der moderne Bungalow verfügt über eine großzügige Wohnfläche von 123 Quadratmetern und steht auf einem 700 Quadratmeter großen Grundstück. Die durchdachte Architektur und die gehobene Ausstattung schaffen ein unvergleichliches Wohnambiente, das höchsten Ansprüchen gerecht wird. Fazit Dieser exklusive Bungalow vereint erstklassige Wohnqualität, modernste Technik und eine traumhafte Lage inmitten der Natur. Ob als dauerhafter Wohnsitz oder als luxuriöser Rückzugsort - hier wird Ihr Traum vom gehobenen Wohnen Wirklichkeit. Vereinbaren Sie noch heute einen Besichtigungstermin und lassen Sie sich von dieser außergewöhnlichen Immobilie überzeugen.

Lage

  • Dieser Bungalow befindet sich in einer der begehrtesten Lagen Rathenows. Die direkte Waldlage bietet Ihnen Ruhe und Entspannung, während der angrenzende Golfplatz und die Nähe zum See vielfältige Freizeitmöglichkeiten direkt vor Ihrer Haustür eröffnen. Die Kombination aus Natur, Exklusivität und Nähe zu erstklassigen Freizeiteinrichtungen macht diese Immobilie zu einem einzigartigen Angebot. Infrastruktur (im Umkreis von 5 km): Kindergarten, Öffentliche Verkehrsmittel

Sonstiges

  • Energieträger: Strom Makleranfragen nicht erwünscht. Nach § 7 UWG sind unaufgeforderte Kontaktaufnahmen durch Makler ohne ausdrückliche Einwilligung des Empfängers verboten! ohne-makler (OM) ist weder Anbieter noch Vermittler der Immobilie. OM betreibt eine Plattform für Immobilieneigentümer, die unter anderem die gleichzeitige Veröffentlichung einzelner Inserate auf mehreren Immobilienportalen ermöglicht. Die Inhalte dieser Inserate werden ausschließlich von Dritten verantwortet. Für die Richtigkeit, Vollständigkeit oder Rechtmäßigkeit der Angaben übernimmt OM keine Haftung. Hinweise auf mögliche Rechtsverstöße können jederzeit gemeldet werden und werden nach Prüfung umgehend bearbeitet.

Karte

14712 Rathenow

Update 30. Aug. 2025

Für sämtliche Inhalte übernimmt die WirSchaffenHeimat GmbH keine Gewähr.

Werbung